AKADEM
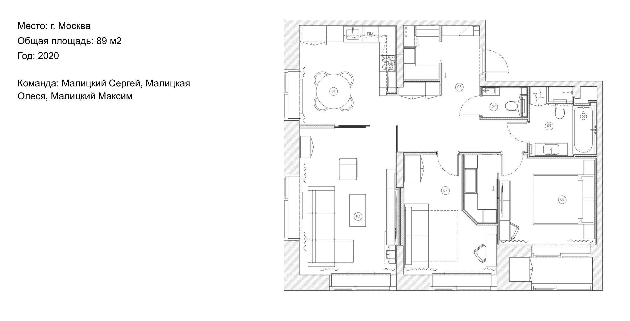
г. Москва, 89 м²
Портфолио
RUZ
ILONA
OLYMPIAN
MAG 7
YA
MAG 5
MAG 1
MOLO
RUZ.Guest
NEVA
LEGENDA