MAG 1
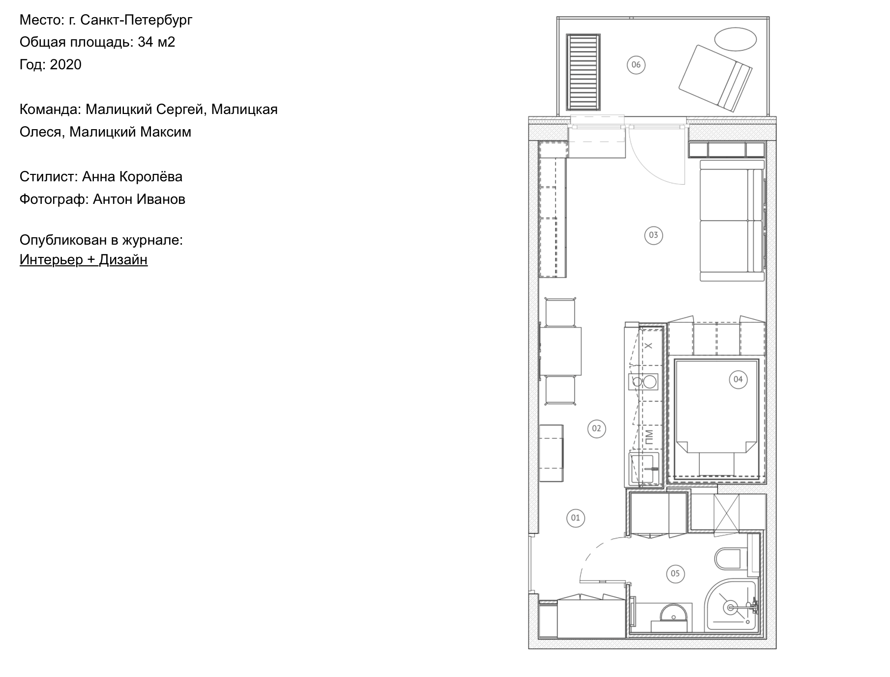
г. Санкт-Петербург, 34 м²
Портфолио
MOLO
RUZ.Guest
NEVA
LEGENDA
AKADEM
RUZ
ILONA
OLYMPIAN
MAG 7
YA
MAG 5