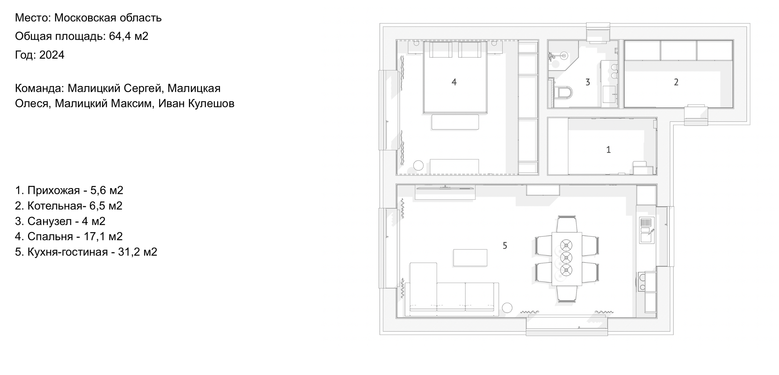
Одноэтажный гостевой дом в коттеджном посёлке на берегу реки Руза.
Интерьер наполнен солнечным светом, благодаря большим окнам в каждом помещении.
Дом находится на общей территории с основным домом, окруженный лесом и детально проработанным ландшафтом. Служит исключительно для отдыха и проживания гостей хозяев, без совмещения с сауной.
Элементы дизайна созвучны с интерьером основного дома, что объединяет комплексно всю территорию и атмосферу участка.






















